概述
JP型低压配电无功补偿综合柜是一种本着安全、经济、合理、可靠的原则而设计的新型户外配电无功补偿综合柜。适用于城网、农网改造、工矿企业、路灯照明、住宅小区等交流50Hz、额定电压380V的配电系统中,具有电能分配、控制、保护、无功补偿、电能计量等多功能的新型户外综合配电箱,同时可根据用户要求加入漏电保护功能。产品具有结构新颖、合理、防护等级高、安装调试、维护及检修方便等优点。产品符合GB7251.1、GB/T15576,并通过了3C认证,是目前电网改造中理想的低压成套装置。
JP系列户外配电无功补偿综合柜适用于0.4kV电压等级的电能分配、计量、保护和无功功率自动补偿。
产品特点
JP系列户外综合配电箱,可具有配电,补偿,计量三种基本功能。用户可根据需要选择不
同方案,具体方案号如下:
01一一配电+补偿+计量
02一一配电+补偿
03一一配电+计量
04一一补偿+计量
05一一配电
06一一计量
07一一补偿
主要性能
1.响应及时迅速,补偿效果好,工作可靠,也可根据用户需求加入漏电保护器。
2.保护功能:过压、过载、欠压、欠流、短路、缺相、零序超限等功能;同时具有剩余电流显示、实时负载电流显示、各相电压显示、产品分合闸指示、时间显示和故障查询等功能。还具有剩余电流、欠电压、过电压、缺相故障引起的剩余电流动作断路器断开后自动重合闸功能。
3.自动运行功能:停电推出、送电后延时10s自动恢复
4.可提高电网功率因数达到0.95以上
运行条件
1.环境温度:-40℃~+55℃
2.空气相对湿度:≤90%(相对环境温度为20℃~25℃)
3.海拔高度:不超过3000m
4.环境条件:适用于箱体内安装,不适用于有火灾、爆炸危险、严重污秽、化学腐蚀及剧
5.烈震动的地方
6.安装位置:与地面垂直的倾斜度不超过5
技术参数
1.额定电压:400V
2.额定频率:50Hz
3.配用变压器容量分别为:10、20、30、50、63、80、100、125、160、200、250、315、400、500、630(kVA)
4.电容分组:一般分2、3、4、5级,如用户有特殊要求,按用户要求配置。
5.馈电回路:一般分2路,每路按所配变压器总容量的80%~100%配置,如用户有特殊要求按用户要求。
6.补偿方式:循环投切,编码投切,模糊控制自动投切。
7.控制物理量:无功功率或无功电流
8.最快响应时间:≤20ms
安装调试
1.安装前检查
检查设备是否完好无损,随机资料及配件是否齐全,如发现问题应及时与厂家联系。
2.安装接线
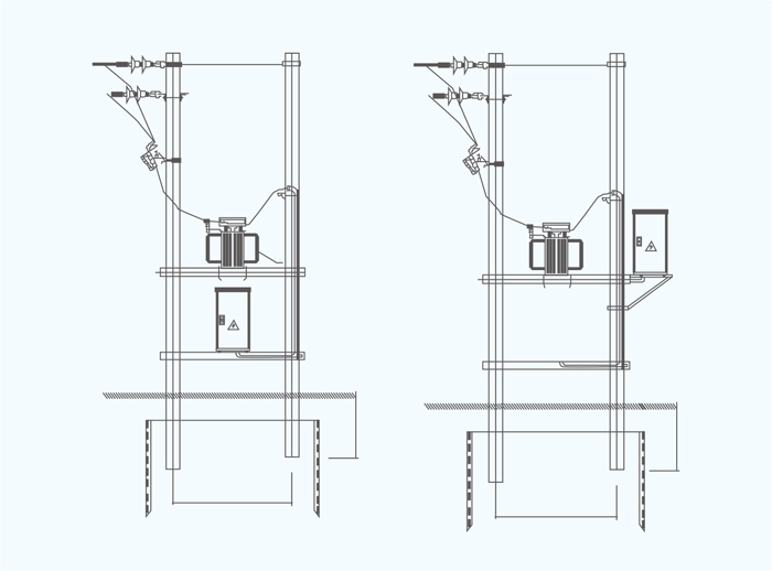
1)产品安装与变压器台架下方或侧边,配电箱固定件由用户自备。
2)产品的安装参照安装示意图(见图2),进出线采用电缆或穿管绝缘导线与变压器或低压馈电架空线连接。
3.通电前的检查与实验
产品安装完毕后,投入运行前需进行如下项目的检查与实验。
1)检查箱体内是否干燥、清洁。
2)电器元件的操作机构是否灵活,不应有卡涩或操作力过大现象。
3)主要电器元件的通断是否可靠、准确,辅助接点的通断是否可靠准确。
4)仪表指示与互感器的变比及极性是否正确。
5)母线连接是否良好,其绝缘支撑件、安装件及附件是否牢固可靠。
6)用500伏兆欧表测量绝缘电阻不得低于10兆欧,浏览量时应断开电子设备、电容器及消耗电流的器件如线圈。
4.通电调试
1)电能表调试
a.馈电主回路通以额定电压和一路负载,电能表应能运转正常。
b.馈电主回路施加额定电压,断开全部负载电能表转动不应超过1圈。
2)无功功率自动补偿控制器的调试
控制器出厂里投入、切除门限,延时时间,过压门限,已按有关标准整定,如需重新整定,请按照无功功率自动补偿控制器的使用说明进行调整。
使用与维护注意事项
1.必须由合格的电气人员进行该产品的操作、维护和检修。
2.维修时要先断开电源,待补偿电容器放电完毕后再进行维修。
3.电缆进出处应采用可靠密封措施,确保运行安全。
4.断路器应定期进行维修。
5.如综合配电箱主开关选用刀开关,则必须在无负荷情况下,分合刀开关,以确保人身安全。
6.如用户选用带有无功补偿装置的综合配电箱,则产品中的无功功率自动补偿控制器,应严格按照使用说明书操作、检验。
外形及安装尺寸
图1外型尺寸示意图

图2 JP型低压配电无功补偿综合柜安装示意图

订货须知
1.方案编号
2.配变容量、馈电路数补偿容量电容器分组要求
3.对控制器投切开关电能表,箱体材质和颜色的要求
4.是否加装漏电保护功能
5.是否配套安装支架




















