产品概述
KYN61-40.5(Z)交流金属铠装移开式开关设备(以下简称开关柜)系三相交流50Hz、额定电压40,5kV户内成套配电装置,主要用于发电厂、变电站及工矿企业的配电室接受与分配电能,可实现对电路的控制、保护和检测之用:还可用于频繁操作的场所。本开关柜符合GB3906-2006《3.6kV~40.5kV交流金属封闭开关设备和控制设备》、GB/T11022《高压开关设备和控制设备标准的共用技术要求》、IEC62271:200《额定电压1kV以上52kV以下交流金属封闭开关设备和控制设备》、DL/T404《3.6kV~40.5kV交流金属封闭开关设备和控制设备》等标准。开关柜形体见图1)
型号含义

正常使用环境条件
1、环境温度:上限+40℃下限-10℃
2、海拔高度不超过1000米;
3、空气相对湿度:日平均值不大于95%,月平均值不大于90%;
4、地震烈度不超过8度:;
5、不适用于有腐蚀或可然气体、水蒸气等明显污染的场所。
注:超过上述正常使用条件时,用户可与制造厂协商确定。
技术参数
1、开关柜主要技术数据

2、断路器主要技术参数

结构特点
开关柜整体结构由柜体、手车两大部分组成。柜体内配用新型国产ZN85-40.5(P)真空断路器或SF6断路器。柜体采用组装结构,提高了手车与柜体的配合精度,同型号手车互换性好,产品外形美观。柜体为进口敷铝锌板多重折弯,用螺栓组装成型。
开关柜主要电器元件都有其独立的隔室,典型方案按功能特征分为继电器仪表室A、母线室B、手车室C、电缆室D四部分。各部分以接地的金属隔板分隔组成一个全封闭铠装设备,能阻止电弧延伸,使可能产生的故障限制在最小的范围内。当某部换元件需更换或维修时,不需要全柜停电,只需切断元件两端的电源,维修人员即可安全进入该室。其外壳防护等级为P4X:手车室门打开,断路器手车处于断开/试验位置时防护等级为P2X(开关柜结构及特征见图2).
开关柜可实现闭门操作。包括断路器分合闸,断路器手车推进至工作位置和退出至断开/试验位置以及接地开关的分合闸都能在高压隔室门关闭条件下进行,开关柜具有电缆进出线、架空进出线、母线联络、隔离、电压互感器、避雷器等多种一次系统方案,本开关柜采用复合绝缘。
1.继电器仪表室A
继电器室内可安装继电保护元件、仪表、带电检指示器以及特殊要求的二次元器件,在继电器的顶板上留有便于施工的小母线穿越孔,
2.主母线隔室B
主母线采用单台拼接相互贯穿联接方式,通过支母线和静触头盒固定。主母线和联络母线为柜型截面母线,分段形式,所有母线均外用热缩套管,所有搭接面都用不同规格大小的异行盒(热缩套管)裹住,满足复合绝缘要求。相邻柜母线套管固定、隔离,能有效的防止事故向其它隔室蔓延。
3.手车隔室C
手车室位于柜前的下部,正后方隔板上装有可以启示开关的金属活门,底部设置拱手车运行的轨道。当手车从试验/隔离位置移动到工作位置过程中,上、下活门通过侧连板与手车联动,自动打开;反方向移动时活门则自动闭合,形成有效隔离。手车的锁定机构与柜体的连接装置部分均设在柜前左右侧。
4.电缆隔室D
电缆室可安装电流互感器、变压器、避雷器、接地开关及电缆,宽裕的空间条件便于多根电缆的连接。
1)联锁功能:为防止误操作,开关柜装有安全可靠的联锁装置,满足“五防”要求。
2)断路器手车只有在断开/试验位置或工作位置时,断路器才能进行合闸操作,且在断路器合闸后,手车的推进机构无法操作,以防止负荷推拉新路器手车。
3)只有当接地开关处在分闸状态时,断路器手车才能从断开/试验位置运动至工作位置,仅当断路器手车断开/试验位置时,接地开关才能进行合闸操作,防止带电误合接地开关。
4)接地开关处于分闸状态时,电缆室门无法打开,防止误入带电间隔。
5)断路器手车处于试验或工作位置而没有控制电压时,仅能手动分闸而不能合闸可选项

6)断路器手车在工作位置时,二次航空插头被锁住不能拔除,
7)手车架中装有丝杆螺母推进机构及超越离合器。借助丝杆螺母的自琐性可使手车可靠琐定在工作位置,防止因电动里的作用引起手车窜动而引发事故。超越离合器在手车移动可防止误操作而损坏推进机构。开关柜与国外同类产品相比,复合绝缘裕度较大,产品的绝缘稳定性好。
6.泄压装置
新路器手车室、母线室和电缆室的上方均设有泄压通道,当断路器或母线室发生内部故障时,伴随电弧的出现,开关柜内部气压升高,顶部泄压金属板将被打开,释放压力和气体,以确保操作人员和设备的安全。
7.防凝露和腐蚀
开关柜手车室、电缆室设有加热装置以防止在高湿度和温度变化较大的气候环境中产生凝露带来的危险。
8接地装置
在电缆室内单独设有50×5m接地铜排,此母排能贯穿相邻各柜,与柜体良好接触,也可供直接接地之元器件使用。
安装与调试
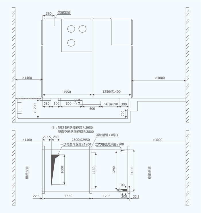
1.开关柜安装基础尺寸参考图3(选用电缆进出线时)。柜体单列布置时,柜前走廊以3米为宜,双列时,柜前走廊以4米为宜,柜后离墙>1400mm.
2.开关柜排列较长的(10面以上),并柜应从中间部位开始。
3.柜体安装后再将手车推入断路器室内,严禁将断路器手车装入柜体一起搬动。
4.检查全部紧固螺栓有无松动,接线是否可靠,在连接部位涂上导电膏或中性凡士林,而后将手车在柜内推进拉出并进行分合闻操作,观察有无异常。检查联锁是否可靠。
5.手车处于工作位置时,应保证一次隔离动、静触头接触良好,动、静触头接触深度应≥25mm.
6.按照断路器及操作机构使用说明书的要求调整断路器分、合闸速度及有关参数。
7.开关柜并柜后,可用M12的地脚螺栓将其基础框架相联或电焊与焊接。
8.母线安装
安装时必须遵照下列步骤:用清洁干燥的软布擦拭母线,检查绝缘套管是否有损伤,在连接部位上导电膏或中性凡士林,最后用异型热缩管包住母线搭接面。
9.接地安装
1)用预设的连接板将各柜的接地母线连接在一起。
2)在开关柜内连接所有需要接地的引线,包括活动部位的软连接。
3)若柜子排列10台以上,基础框架与接地排相连,必须有两个以上的接地点。
4)将接地开关的接地线与开关柜接地主母线联结。

使用与维护
1.开关柜投入运行前,应认真核对铭牌所标技术数据与运行电力线路所要求的技术数据是否一致。
2.彻底清除柜内的灰尘和异物。对有裂纹或损坏的绝缘件应及时更换。对所有绝缘件的表面用工业酒精或丙酮擦拭干净。
3.对设备所有紧固件进行认真检查,以排除松脱现象。对传动及点连接部位用工业黄蜡油涂敷润滑。
4,完成上述工作后,对断路器进行储能、合闸、分闸试操作,如正常,即可通电运行,
5.开关柜在正常运行时,应对运行情况如实记录,并按断路器的使用说明书的要求做好定期的维护保养工作。如发现绝缘件表面凝露或局部放电、导体连接处或动静触头接触处过热变色、柜内温度明显偏高以及异常气味等,应及时找出原因加以排除。
6.操作程序
操作人员对开关柜各部分的操作,应严格按操作规程和技术文件的要求进行,不能随意操作,更不应在操作受阻时,强行操作,否则造成设备损坏,甚至引起事故。若手车从工作位置退出,应首先确认断路器在分闸状态,用手柄摇把打开插孔小门,插入插孔逆时针转动,直到摇把已明显受阻则取下,关上手柄摇把插孔,断路器即已退至试验位置,主回路已经完全断开,活门关闭,柜门可以打开。
1)断路器柜的操作(有接地开关)
a.断路器进入柜体:断路器手车推入柜前应确认接地开关是否处于分闸状态,只有在此状态下才可将手车推入柜内试验位置,将手车驱动机构右侧的接地开关联锁手柄相右拉出,同时向外左、右拉动车左、右把手,将手车锁定在试验位置。
b.手车在柜内操作:手车进入柜体后,即处于试验位置,若将手车运行,应先将辅助回路插头插好,此时可在主回路末接通的情况下对手车进行电气操作,但必须所有柜门关好锁住,并确认断路器处于分闸状态,将手柄摇把插入插孔,顺时针转动,直到明显受阻则取下。断路器即处于工作位置,用手柄摇把关上插孔小门后,方可通过控制回路进行合、分操作。
C.若从柜中退出手车,应首先确认断路器处于试验位置,用手柄向左拉进。以解除接地开关联锁,同时向内拉动手车左、右把手,将手车解锁并向柜外拉出。
d.接地开关操作:首先应确认手车已退至试验位置,用手柄把关上其插孔小门,将接地开关联锁操作手柄向逆时针方向拉合上接地开关;若要分接地开关,首先应确认后门关闭,再插入接地开关操作手柄,顶针转动即可分开接地开关,此时后门则不可能打开。
2)一般隔离柜的操作
隔离手车不具备接通和分断负荷电流的能力,在带负荷的情况下不允许推拉隔离手车。进行隔离手车柜内操作时,必须先将与其联络的断路器分闸。
7.使用联锁的注意事项
1)本产品的联锁功能以机械联锁为主,辅之电气联锁实现开关柜“五防”闭锁的要求。但操作人员不得因此忽视操作规程的要求,只有规程制度与技术手段相结合才能发挥联锁装置的保障作用,预防事故的发生。
2)联锁功能的投入和解除,大部分是正常操作过程中同时实现的,不需要增加额外的操作步骤。如发现操作受阻操作力增大),应检查是否误操作,而不应强行操作,导致操作事故的发生损坏设备。
3)开关柜的检修除按有关规程要求进行外,建议用户特别注意以下几点:
4)按真空断路器使用说明书要求,检查其完好情况并进行必要的调试。
5)检查手车推进机构及其联锁情况,使其满足使用说明书的有关要求。
6)检查主回路,动静触头有无损伤,弹簧有无明显变化,有无温度发热异常氧化现象,若有应及时处理。
7)检查辅助回路触头有无异常,如接地触头,主接地线及门接地线等,保证其连续性。
8)检查各部分紧固件,如有松动,应及时紧固。
运输与保管
1、产品在运输、装卸、临时停放及安装调试时,不许倒置、碰撞和剧烈震动。
2、产品不用时,应储存在干燥、通风良好、无腐蚀性气体的室内。
3、产品开箱后,应按产品装箱单核对、检查产品备件及随附的技术是否完整、齐全。
4、检查产品在运输、保管过程中有无损伤。
5、不允许随意拆卸电器元件及零部件。
随机文件包括
1、产品装箱单:
2、产品合格证:
3、产品出厂试验报告:
4、安装使用说明书:
5、设备清单:
6、二次接线图:
7、手车操作摇把:手车储能手柄:接地开关操作手柄及钥匙。
订货须知
订货时必须提供下列资料:
1、主接线方案编号、一次系统图排列图及平面布置图:
2、二次回路原理图、端子排列图:
3、开关柜内电器元件的型号、规格、数量:
4、特殊环境条件下使用要求:
5、需要附件、备件时,应提出种类和数量。
一次图方案编号


上一篇:没有了!




















